×

Prestige Minsk Square


Prestige Minsk Square is an iconic corporate office building which is situated in Bangalore's Cubbon Park on Infantry Road. This construction blends state-of-the-art facilities with elegant architecture to meet the demands of contemporary businesses. It offers established businesses, startups, and global firms a vibrant work environment. Prestige Minsk Square is an unmatched option for businesses looking for a distinguished address in the city because of its advantageous location, first-rate infrastructure, and environmentally friendly architecture.

Prestige Minsk Square's master plan exhibits the ideal fusion of practicality and beauty. The building is fifteen stories tall and occupies a vast 2.24-acre plot of land. It is RERA-registered and contains 60% open space. The number for registration is PR/200811/003524.


Project Highlights


Development Type

Development Type

Office Space

Project Location

Project Location

Vasanth Nagar

Total Land Area

Total Land Area

2.24 Acres

No. of Units

No. of Units

On Request

Project Status

Project Status

Ready To Move

Possession Time

Possession Time

December 31, 2022

Rera Karnataka

Rera Approval

PR/200811/003524



Location

Prestige Minsk Square

Prestige Minsk Square is situated on Cubbon Road, Bangalore, a prime business hub that offers excellent connectivity. The area is well-connected to major parts of the city via MG Road, Brigade Road, and Residency Road. The project is also close to the Bangalore Metro, ensuring seamless access to public transportation. Its central location provides easy access to prominent commercial establishments, government institutions, and social infrastructure.

Because of its prime position in Bangalore's major business center, Prestige Minsk Square offers great accessibility and a bustling business community. It is close to important government and business centers. Famous sites like UB City and MG Road are nearby. The area is surrounded by upscale lodging facilities, retail centers, fine eating establishments, and cultural landmarks. It is easy for international connections because it is only about 35 kilometers from the airport. Corporate events and business meetings are supported by a thriving social infrastructure.

Connectivity

  • MG Road Metro Station: 1 km
  • Bangalore Cantonment Railway Station: 2.5 km
  • Kempegowda International Airport: 34 km
  • Easy access to Brigade Road, Commercial Street, and other prominent business hubs

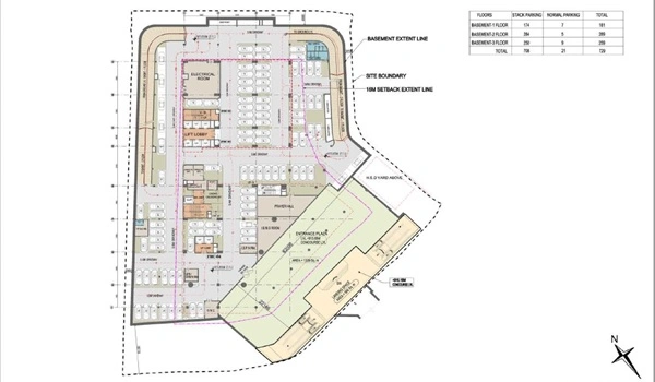
Floor Plan

Prestige Minsk Square Floor Plan

Prestige Minsk Square provides floor plans that can be changed to meet the requirements of companies. It is ideal for new businesses and boutiques that need small but functional premises. For SMEs searching for workspaces focused on growth, it is perfect. It offers large and upscale floor plates and is intended for use by global organizations.

Amenities

Prestige Southern star Amenities

Prestige Minsk Square is equipped with a variety of amenities aimed at enhancing worker well-being and productivity. It features

  • fire detection and suppression systems
  • high-speed internet
  • reliable HVAC systems
  • 100% power backup
  • High-speed elevators
  • 24/7 power backup
  • Advanced security systems with CCTV surveillance
  • Ample parking space
  • Modern lobby and common areas
  • Green and sustainable design with energy-efficient systems

In addition, it has conference rooms, event spaces, green areas, breakout areas, food courts, and a cafe. Additionally, it features access and exit points, security guards, CCTV surveillance around-the-clock, and concierge services.

Specifications


Doors

  • Internal: Laminated Flush Door
  • Main: Wooden Frame and Moulding Door

Flooring

Vitrified Tiles

  • Toilets
  • Balcony
  • Kitchen
  • Living/Dining
  • Master Bedroom
  • Other Bedroom

Walls

  • Exterior: Emulsion Paint
  • Kitchen: Ceramic Tiles up to 2 Feet Height Above Platform
  • Interior: Plaster & OBD
  • Toilets: Combination of Ceramic/Vitrified Tiles Dado


Ceramic Tiles

  • Balcony
  • Kitchen

Fittings

  • Exhaust Fan for Toilets
  • Exhaust Fan for Kitchen

Others

  • Points: Living
  • UPVC / Aluminium Windows
  • Copper Wiring in PVC Concealed Conduit
  • RCC framed structure
  • Modular switches

An RCC-framed structure with an earthquake-resistant design is part of the project parameters. For enduring durability, it is constructed with high-quality materials. High-end flooring with integrated lighting and air conditioning in common areas and office spaces, as well as modular ceilings. It features effective waste management systems, rainwater harvesting, and sophisticated plumbing and water delivery systems. High-speed elevators with short wait times and energy economy are two benefits of smart building management system technology.

Reviews

Prestige Southern star Reviews

Both entrepreneurs and investors have given the complex favourable reviews. Each amenity creates the ideal working atmosphere while also taking environmental concerns into consideration.

The project has great connectivity and is situated in the heart of Bangalore. It combines top-notch amenities with brilliant architecture. Its environmentally friendly design guarantees a green work environment. Prestige Minsk Square provides companies with a first-rate address and a supportive atmosphere for expansion, making it more than just an office building.

Prestige Group is developing an ultra-luxurious apartment project in South Bangalore’s Begur Road, Prestige Southern Star. The project offers well-designed 1, 2, 3, and 4 BHK apartments. It covers vast 30 acres of land and has more than 80 per cent open space and greenery. The project is RERA approved and gives an ideal choice for investors and end users.

About Prestige Group

About Prestige Group

One of India's most reputable residential developers, Irfan Razak, established the Prestige Group in Bangalore in 1986. The company, well-known for creating opulent residential and commercial buildings, has grown nationwide and has finished several projects in important Indian cities like Bangalore, Mumbai, Chennai, Hyderabad, and Delhi.

Milestones of Prestige Group:

  • The firm has completed 300+ real estate projects in 4362 acres.
  • Total development area: 190 million square meters of area.
  • Total 58 ongoing residential projects in 2112 acres of land in major states of India.

Top Prestige Group Projects in Bangalore:

  • Prestige Southern Star
  • Prestige Minsk Square
  • Prestige Raintree Park
  • Prestige Pine Forest
  • Prestige Somerville

Prestige Group Blogs


Disclaimer: Any content mentioned in this website is for information purpose only and Prices are subject to change without notice. This website is just for the purpose of information only and not to be considered as an official website.